
Casa prefabbricata in legno sup. lorda ca. 155 m2 di cui m2 13 di pergolato, 4 m2 di balcone e 15 m2 di eventuale terrazza.
Villa prefabbricata in legno Smart 123 è una ulteriore proposta di costruzione che modifica la già tanto apprezzata SMART 228 da 228 mq lordi. L'idea progettuale di questa soluzione sta nel ridimensionamento delle superfici del modello Smart 228, pur mantenendo un'ottima fruibilità dei locali interni tramite una distribuzione intelligente degli stessi. Questo progetto di casa prefabbricata in legno si sviluppa su dimensione lorda di 123 mq oltre balcone. Questa villa prefabbricata in legno, distribuita su due livelli, si compone di due bagni (uno per ciascun piano), tre camere, un grande soggiorno ed una ampia cucina abitabile. Vengono mantenute le linee architettoniche moderne già proprie della modello SMART 228 nonché la possibilità di fruire del tetto come una grande terrazza. Scala di legno autoportante per l'accesso al piano primo. Contatta Ecodimora, costruttori case bioedilizia, per ulteriori informazioni e per visionare i vari modelli di case prefabbricate in legno.
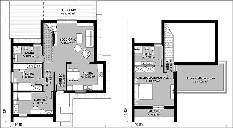
Casa prefabbricata in legno SMART 123 : dettaglio superfici
Dettaglio superfici nette piano terra (ca.):
- Ingresso: 4.1 m2
- Disimpegno: 3,8 m2
- Cucina: 12 m2
- Soggiorno: 25,2 m2
- Camera: 11,1 m2
- Camera: 9,6 m2
- Bagno: 6.2 m2
Dettaglio superfici nette piano primo (ca.):
- Disimpegno: 1,1 m2
- Bagno: 7 m2
- Camera: 18,9 m2
