Casa prefabbricata in legno NORD 221

Descrizione

Casa prefabbricata in legno sup. lorda: ca. 251 mdi cui 17 m2 di portico, 11,3 m2 di balcone e 41,5 m2 di garage.

Villa prefabbricata in legno unifamiliare dal design spiccatamente moderno e dalle linee nord-europee.
Progetto di casa prefabbricata in legno pensata per la famiglia e ideata non solo per contesti urbano residenziali, ma anche per contesti semi-rurali.
La zona giorno è assimilabile a un vero e proprio appartamento per le sue metrature vaste e confortevoli: possiamo infatti perfettamente distinguere i tre spazi quali soggiorno, sala da pranzo e cucina senza soluzione di continuità. La maestosa scala all'ingresso permette di ampliare visivamente gli spazi del soggiorno. Salendo è possibile infatti apprezzare come il disimpegno del piano primo crei un bellissimo soppalco sulla zona living. Da ogni lato del fabbricato è possibile sfruttare le vetrate per affacciarsi all'esterno, sul generoso portico e sulle terrazze. La distribuzione intelligente degli spazi rende la villa prefabbricata in legno una dimora ampia e confortevole in cui vivere il calore della famiglia preservando la privacy di tutti i suoi componenti.

Casa prefabbricata in legno disponibile in tutte le varianti tecnologiche di pareti e copertura. Viene fornita normalmente con tetto prefabbricato anziché realizzato in opera per una maggiore rapidità di montaggio. Opzionalmente il tetto di questa casa prefabbricata di legno dalle generose metrature puo' essere progettato come terrazza. Finestre di capitolato in PVC, 5 camere e doppia guarnizione. Vetri doppi di sicurezza con gas argon a migliorare le prestazioni di isolamento acustico. Tapparelle di capitolato in alluminio con coibentazione a manovra manuale tramite arganello oppure e opzionalmente motorizzate con telecomando. In alternativa, sempre opzionale, ante/persiane/scuroni esterni in Fibex oppure alluminio. Intonaco esterno silossanico idrorepellente. Il capitolato di questa villa prefabbricata in legno è ampiamente personalizzabile scegliendo tra le molteplici opzioni disponibili. Scala di accesso per accedere al piano primo: autoportante e di legno. Impiantistica e finiture interne personalizzabili. Contatta Ecodimora, costruttori case bioedilizia, per ulteriori informazioni.

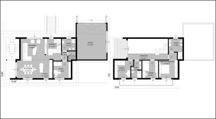
Casa prefabbricata in legno NORD 221 : dettaglio superfici

Dettaglio superfici nette piano terra (ca.):

  1. Portico: 17 m2
  2. Ingresso: 10,7 m2
  3. Studio: 10,4 m2
  4. Ripostiglio: 2,3 m2
  5. Disimpegno: 1,8 m2
  6. Bagno: 5,7 m2
  7. Sala da pranzo: 11,6 m2
  8. Soggiorno: 19,5 m2
  9. Cucina: 11,5 m2
  10. Garage: 37,2 m2

    Dettaglio superfici nette piano primo (ca.):

  11. Disimpegno: 8,5 m2
  12. Bagno-1: 5,7 m2
  13. Bagno-2: 7,7 m2
  14. Camera: 10,5 m2
  15. Camera: 9,9 m2
  16. Camera matrimoniale: 14 m2

Categorie